We specialize in designing homes that incorporate the latest technologies for energy-efficient living. Proudly serving the greater New England area, helping homeowners create sustainable and comfortable spaces.Our commitment to innovation and sustainability drives us to continually explore cutting-edge technologies and design practices. By seamlessly integrating energy-efficient solutions into every aspect of our homes, we strive to create living spaces that are not only environmentally friendly but also comfortable and efficient. Over the years, our dedication to serving the greater New England area has allowed us to witness the transformative impact of sustainable design on homeowners' lives, inspiring us to push the boundaries of what's possible in eco-conscious living.
ICF’s insulated concrete forms for foundations and exterior walls
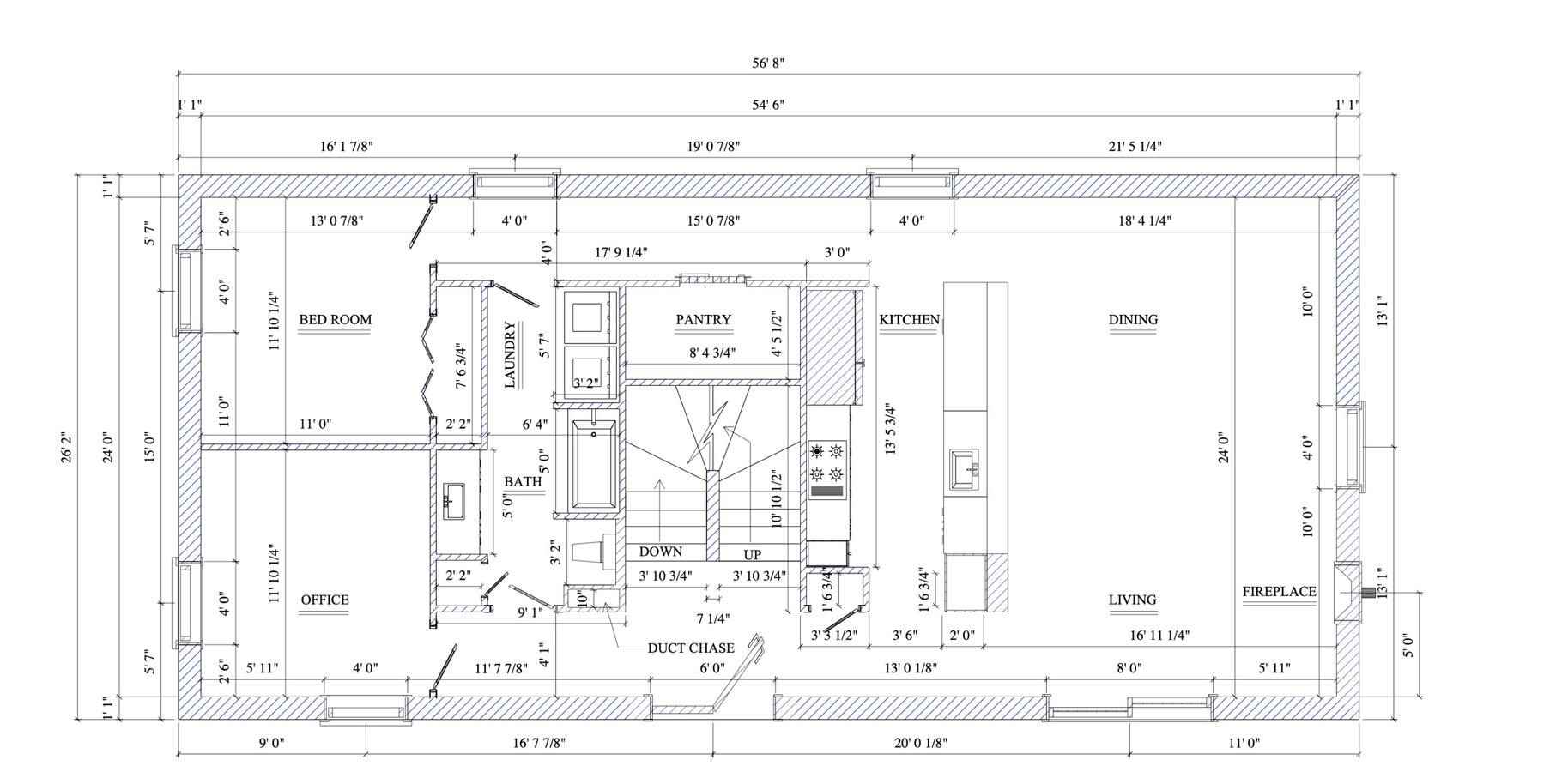
COMPLETE HOME DESIGNED WITH ICF'S FOR BOTH FOUNDATION AND EXTERIOR WALLS
SIP’s structural, insulated panels












